本文へスキップ

TEL. 06-6210-5106

〒542-0081 大阪市中央区南船場2-12-10
ダイゼンビル3F

商品情報/TB-CAD64 Premium Edition/2D機能PRODUCTS


 「TB-CAD64 Premium Edition」は、共通機能と三種類の機能に分かれています。
  • 共通機能
  • 管理機能 (Management Pack)
  • 2D機能 (2DCAD Pack)
  • 3D機能 (3DCAD Pack)

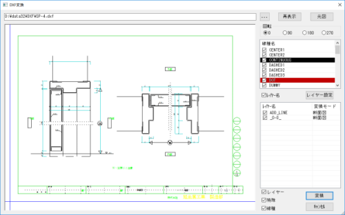
    機能201−設計CADデータ変換機能

     設計CADの断面図を2DCADに変換することができます。 さらに変換された図形はTBCADの部品データに変換することができます。([機能-05]参照)
    • 変換する断面図の線種とレイヤーを設定して変換を行います。
    • 2DCADに変換された断面図が表示され、TBCADデータ変換機能でTBCADの部品データに変換することができます。

    機能202−TBCADデータ変換機能

     2DCADで作図した展開図と展開図をTBCADの部品データに変換することができます。
    • 2DCADでデータ変換する図形のレイヤーを指示します。
    • 2DCAD変換画面にデフォルメされた断面図が表示され、部品情報を入力してTBCADの部品データに変換します。

    機能203−マクロデータ機能

     変数を設定した基本図形(断面形状の図形)とマクロ図形(補強やフタなどの図形)の利用で、基本図形の変数の数値によって、断面図に付属する図形が作成されます。作成された図形はTBCADの部品データに変換することができます。([機能-05]参照)
     手動モードは、マクロ登録データを呼び出し、基本図形の変数に数値を入力して、マクロ図形を作成する機能です。自動モードは、TBCADの断面図と比較して、一致するマクロ登録データを自動的に呼び出します。基本図形の変数にはTBCADの断面図の寸法が反映され、マクロ図形を作成する機能です。
    • マクロデータを一覧から選択します。
      ・手動モードは、マクロ登録から該当するデータを選択します。
      ・自動モードは、TBCADの断面図と比較して、一致するマクロ登録データが一覧され、 該当するデータを選択します。
    • 基本図形の変数に数値を設定すると、変形したマクロ図形が2DCADに表示され、TBCADデータ変換機能でTBCADの部品データに変換することができます。([機能-05]参照)
      変数に 符号パラメータや記号パラメータを設定しておくと、自動的に数値を取り込みます。
      ・手動モードは、対話式に変数の数値を入力します。
      ・自動モードは、TBCADの断面図の寸法が反映され、入力は不要です。